
漫游方寸之間
層層疊疊中
都是生活與藝術的交織
簡境致美,深沉純粹

#1 項目信息
項目地址 / 廣東·中山
項目戶型 / 大平層
項目面積 / 150+㎡
項目風格 / 現代極簡風格
項目名稱 / 中山博達外灘
服務內容 / 整案空間設計、全屋固裝高定、配套家具落地

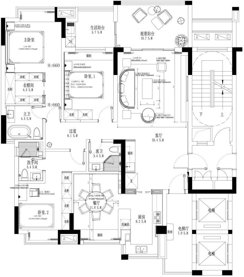
△平面設計圖
#2 項目亮點
→落地實景1:1還原效果圖,嚴格落實設計圖紙,高效對接各個環節。
→全屋燈光設計,無主燈設計,線型燈點綴墻面、吊頂,營造柔和、均勻的溫馨氛圍。
#3 項目賞析
客廳
LIVING ROOM

△效果圖




△實景圖
低飽和度色調勾勒出內斂的氣質
添入一抹暗紅,更顯神秘
在點、線、面空間構成中
領略工藝的極致美
品味材質的隱奢美
享受生活的多樣美

電視背景墻展現極簡藝術
簡約線條,內藏光影
構建多維度的家居美學
過道
GANGWAY


△實景圖
在設計里
找尋家的全新體驗感
過道區域設置簡約洗手臺
打破空間局限,美觀且實用
所有的設計都恰到好處
餐廳
DINING ROOM

△效果圖


△實景圖
低飽和的灰調大面積鋪陳開來
煙熏橡木皮拼貼餐桌紋理分明
搭配上灰白餐椅
呈現一體化的美感
就餐區臨近挨著中島臺
在每天的生活里
享受與家人互動的時光
感受人間煙火氣


△實景圖
餐廚空間開放式格局設計
考慮到實用與功能性
廚房選擇同色系巖板長條島臺
利用視覺延伸,使空間更流暢
可西廚、可小酌、可會友、可簡餐
臥室
BEDROOM

△效果圖




△實景圖
輕奢而不失生活的藝術感
線條裝點劃分空間層次
矜貴金叉木皮貝殼拼花
將空間品質再次提升
無聲營造空間精致感

△效果圖



△實景圖
主臥、主衛、衣帽間一體化套間設計
開放式的衣帽間便于主人陳列和選用應季服飾
其中隱藏的移門衣柜讓換季衣服的收納更有條理
隱藏式線性軌道燈增加了空間的氛圍感
多功能空間,質感非凡


△效果圖



△實景圖
次臥以簡約時尚為主題
優雅、精致,充滿生活情調
靠墻設計的超高米灰色衣柜
更是憑借材質與設計的魅力
將繁華的閑適與出則雅致的樸實極致演繹



△效果圖




△實景圖
客臥色調柔和安靜
原木色床頭柜貼近自然
讓空間設計效果有著對稱的端莊畫面感
窗前的收納柜及書桌一體化定制設計
用設計巧思提高空間利用率
合適的材質平衡空間的“簡”
共同營造柔和舒適的睡眠空間
以及簡約沉穩的居家氛圍
上一篇:卡芬達家居丨森系輕奢,清新治愈
下一篇:卡芬達家居丨天然與設計,匠心共筑